グループホーム穴太のせせらぎ 施設案内

施設案内

心穏やかな生活空間を目指して

穴太のせせらぎでは入居屋の方とホームのスタッフが、ひとつの新しい家族となり心寄り添う我が家になることをめざします。
今までの暮らしと同じように、いつも変わらない生活を送れるように私たちスタッフは支援します。

充実のバックアップ体制と笑顔あふれるスタッフがいます。

私たちはいつでも、どこでも、その人らしい暮らしが出来ることを応援します。
また、病院・歯科・社会福祉施設などのバックアップもあり安心です。

居室

居室

使いなれたものを持ち込み、自分らしい生活環境を作れます。

浴室

浴室

個人にあわせた入浴が可能です。

食堂

食堂

家庭的でなごやかな雰囲気の中で、楽しく食事が出来ます。

リビング

リビング

広々としたリビングでゆったりとしたひとときを過ごせます。

廊下

廊下

広々とし、開放感があります。

トイレ

トイレ

トイレは普通2、車椅子対応1を各階に設置しています。

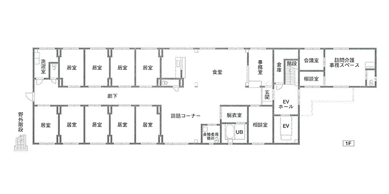
施設の間取り図

※クリックで拡大表示

建物概要 : 鉄骨造勾配屋根2階建
 敷地面積 : 1410㎡
■ 延床面積 : 625.19㎡
 定員   : 18人(2ユニット)

アクセスマップ

〒581-0815
大阪府八尾市宮町三丁目4番52号